Mieszkanie 41 m2 Ścisłe Centrum Rynek Opole
Opole / Śródmieście Pokaż na mapie ›
Odświeżone: Piątek, 19 Grudzień, 2025 11:17
399 999 zł
9678 zł/m2
Szczegóły ogłoszenia
- Kategoria: Mieszkania / Sprzedaż
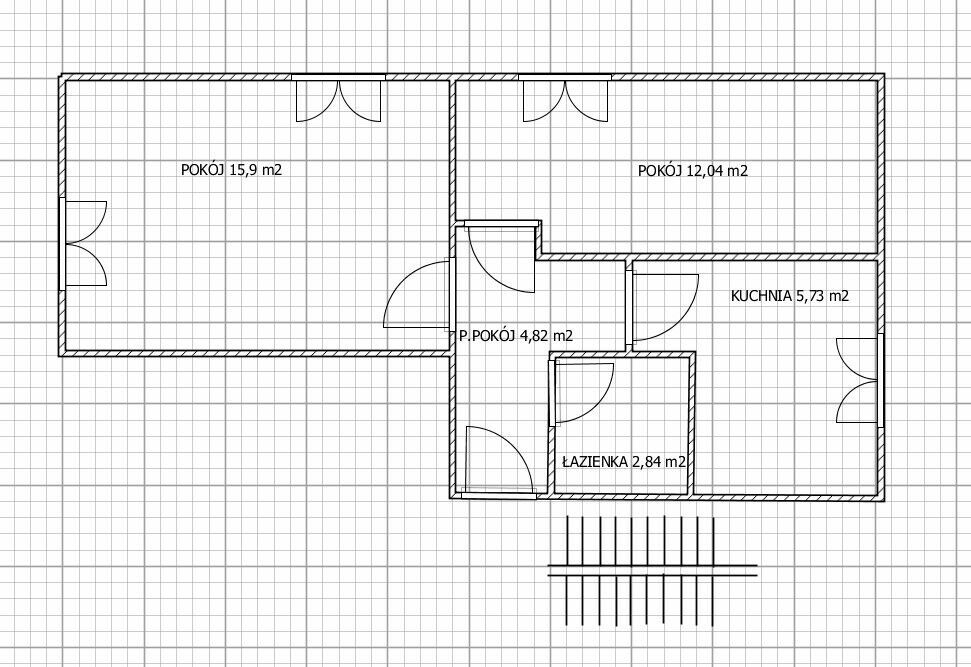
- Powierzchnia:41,33 m2
- Liczba pokoi:2 pokoje
- Zabudowa:Kamienica
- Tech. budowy:Cegła
- Piętro :1 piętro
- Liczba pięter:2 piętra
- Rynek:Wtórny
- Rok budowy:1955
- Stan:Do gruntownego remontu
- Forma kuchni:Oddzielna
- Sprzedaż:Bez pośredników
- Cena: 399 999 zł / 9678 zł/m2
- Ulica: Staromiejska
Opis oferty
2-pokojowe mieszkanie 41,33 m² w centrum OpolaZ widokiem na zieleń, zaledwie 90 m od Rynku.
Lokal bardzo ustawny z 2 oddzielnymi pokojami i oddzielną kuchnią.
Idealne do zamieszkania lub jako inwestycja.
Rozkład pomieszczeń:
Salon – 15,90 m² (dwa okna, dobre doświetlenie)
Sypialnia – 12,04 m²
Kuchnia – 5,73 m² (oddzielna)
Łazienka – 2,84 m²
Przedpokój – 4,82 m²
Układ funkcjonalny, umożliwiający efektywne wykorzystanie powierzchni oraz łatwą adaptację do własnych potrzeb.
Stan techniczny:
Mieszkanie do remontu. Istnieje możliwość dowolnej aranżacji przestrzeni – zarówno w standardzie mieszkania prywatnego, jak i lokalu inwestycyjnego.
Media i uzbrojenie:
Pełne media miejskie – woda, kanalizacja, gaz, energia elektryczna.
Możliwość parkowania w bezpośrednim sąsiedztwie budynku.
Atuty nieruchomości:
Centralna lokalizacja w bezpośrednim sąsiedztwie Rynku
Dostęp do komunikacji i usług w promieniu kilku minut pieszo
Widok na teren zielony – rzadkość w tej części miasta
Układ umożliwiający wydzielenie funkcjonalnych stref
Możliwość wykorzystania mieszkania zarówno na cele mieszkaniowe, jak i inwestycyjne
Sprawdź zainteresowanie tym ogłoszeniem
Wyświetlenia
Data dodania
Ostatnio widziany
Obserwujących
Wysłane zapytania
Odsłony telefonu
Powiadom o podobnych ogłoszeniach
Lokalizacja: Opole
Kategoria: Nieruchomości » Mieszkania » Sprzedaż
Cena: od 340000 zł do 460000 zł Powierzchnia : od 35 m2 do 47 m2
Chcę otrzymywać powiadomienia o nowych ofertach
Anna
Konto prywatne
Na Lento.pl od 06 lis 2025
Strona użytkownika
- Wypromuj ogłoszenie
- Zgłoś naruszenie
- Drukuj ulotkę
- Edytuj/usuń ogłoszenie
- Udostępnij ogłoszenie
- Dodaj na Facebook





















